



35° em projetos mais vendidos






Projeto Texas
O que vem nesse projeto
Projeto de fundação
Projeto elétrico
Projeto Hidráulico
Projeto de cobertura
Projeto de montagem
Imagens 3D em alta definição
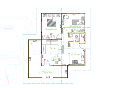
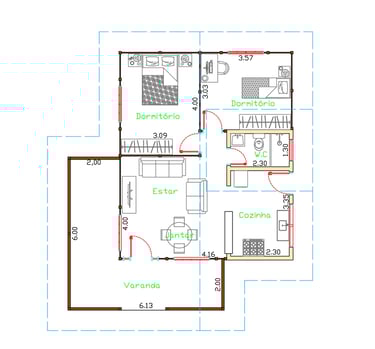
Planta Humanizada
R$5.600
10% OFF no Pix
Lista de materiais
Lista de madeiras


Compra Garantida. Receba o produto que está esperando ou devolvemos o dinheiro.
3.7
(112)
Atenção ao Prazo: A entrega do projeto ocorre em até 30 dias após a compra. Em caso de dúvidas ou necessidade de acompanhamento, nossa equipe está pronta para te atender.
Forma de Envio: O projeto será enviado digitalmente para o e-mail cadastrado na compra. Lembre-se de verificar sua Caixa de Entrada e o Spam após o prazo de produção.


Formas de pagamento
Crédito:
Pix:
Boleto bancário:
Informações de Viabilidade


Aproximadamente 75,91 m²


Projeto Exclusivo: Se precisar adaptar este projeto às suas necessidades específicas, basta entrar em contato. Clique "precisa de ajuda?"e solicite sua customização!
Informações do Projeto
Frente mínima do terreno:
Profundidade mínima do terreno:
Área construída:
Número de pavimentos:
Suítes:
Total de banheiros:
Vagas de garagem:
Tipo de cozinha:
Varanda:
Tipo de construção:
Madeira
12,00 metros
20,00 metros
Área Mínima do Lote:
240,00 m²
1 Pavimento
Tipo de Terreno Compatível:
Plano
Não
Dormitórios s/ banheiros :
2
1 Banheiro
Não
Integrada (Conceito Aberto)
Sim
Pé direito duplo:
Não


Já possui o projeto e quer começar a construir?
12x R$ 379⁵⁹
ou à vista por 4.554⁹⁹
100% CASHBACK
NA CONSTRUÇÃO
Ao adquirir um projeto com a gente e optar pela execução com a Metodum Engenharia, o valor integral do projeto é convertido em desconto direto no seu contrato de construção.


O papel do projeto no planejamento e execução da obra
Descrição


